マンション 鶴山台第二住宅3号棟
所在地
和泉市鶴山台3丁目
300万円
79.13m²
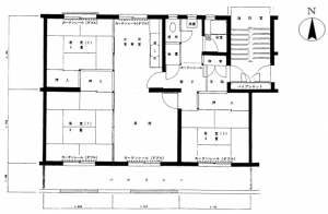
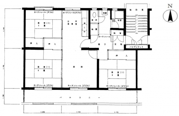
3LDK
・JR阪和線「北信太」駅 徒歩15分
・3DKの使いやすい間取り
・専有面積約79.13㎡
・南向きバルコニーで日当たり良好
・空室につき即入居可能
・投資用・自己居住どちらも検討可
物件概要
- 交通
-
阪和線 北信太駅 まで 徒歩15分
- 専有面積
- 壁芯 79.13㎡
- バルコニー面積
- 16.51㎡
- バルコニー方向
- 南
- 所在階/階数
- 4階/5階
- 築年数
-
1974年
(昭和49)
1月
築52年 - 建ぺい率
- 容積率
- 土地権利
- 所有権
- 構造および階数
- RC(鉄筋コンクリート) 造 地上5階建
- 総戸数
- 小学校区
- 鶴山台南
- 中学校区
- 信太
- 地目
- 現況
- 空
- 引渡時期
- 相談
- 駐車場
- 空有
- 駐車場月額
- 7,000円/月
- 管理形態
- 自主管理
- 管理方式
- 管理会社
- 管理費
- 4,000円
- 修繕積立費
- 7,200円
- 上水道
- 下水道
- ガス
- 都市計画
- 用途地域
- 設備・条件
- 備考
- 取引態様
- 仲介







