中古一戸建て 和泉市はつが野1丁目
所在地
和泉市はつが野1丁目
3,980万円
40.10坪
3LDK
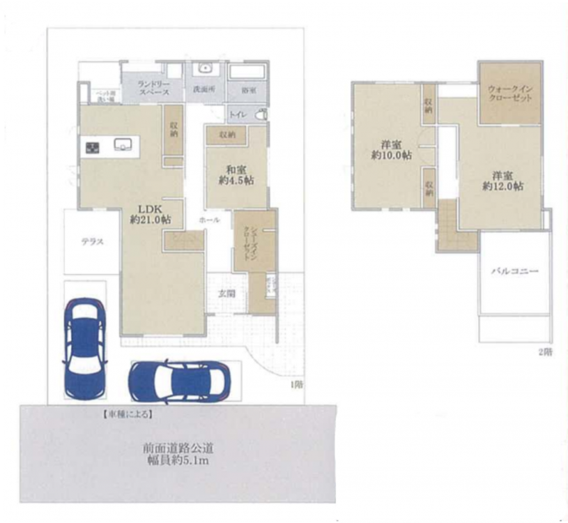
・土地約53.2坪/建物約40.1坪
・3LDKのゆとりある間取り
・LDK約21帖の広々リビング
・駐車2台可能(車種による)
・2009年10月築
・2024年9月外壁塗装工事実施
・太陽光発電システムあり
・南海電鉄泉北線「和泉中央」駅 バス約7分
・第一種低層住居専用地域
※詳しい物件情報は 072-447-8184 までお問い合わせ下さい!
月々の
支払例
支払例
万円
年
%
円
※紀陽銀行/借入金3,980万円、返済期間35年、金利0.600%変動)の場合
※審査により金利は変わる可能性があります。
物件概要
- 交通
-
南海泉北線 和泉中央駅 バス7分乗車 バス停はつが野口
- 接道状況
- 東側 公道5.1m 間口約11m
- 土地面積
- 176.00㎡ (53.23坪)
- 建物面積
- 132.57㎡ (40.10坪)
- 築年数
-
2009年
(平成21)
10月
築16年 - 建ぺい率
- 50%
- 容積率
- 100%
- 土地権利
- 所有権
- 構造および階数
- 木造 地上2階建
- 小学校区
- 青葉はつが野
- 中学校区
- 南池田
- 私道負担
- なし
- 地目
- 宅地
- 現況
- 居住中
- 引渡時期
- 相談
- 駐車場
- 有
- 上水道
- 公共
- 下水道
- 公共
- ガス
- 都市計画
- 市街化区域
- 用途地域
- 1種低層
- 設備・条件
- システムキッチン、ウォークインクローゼット、駐車場2台分
- 備考
- 上水道,下水道,システムキッチン,IHクッキングヒーター,ウォークインクローゼット,シューズインクローゼット,駐輪場,バイク置き場,駐車場2台分
- 取引態様
- 仲介







