中古一戸建て 和泉市鶴山台1丁目
所在地
和泉市鶴山台1丁目
1,950万円
49.25坪
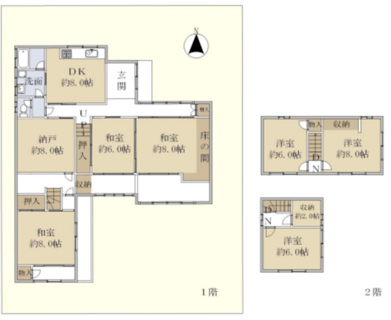
6SDK
・JR阪和線「北信太」駅徒歩16分の落ち着いた住環境
・土地約89坪・建物約49坪のゆとりある広さ
・前面道路幅約5.9mで駐車もスムーズ
・南向きで日当たり良好、明るい室内
・スーパー・病院・公園など生活施設が充実
・2世帯住宅やリフォーム用地にもおすすめ
※詳しい物件情報は 072-447-8184 までお問い合わせ下さい!
月々の
支払例
支払例
万円
年
%
円
※紀陽銀行/借入金1,950万円、返済期間35年、金利0.600%変動)の場合
※審査により金利は変わる可能性があります。
物件概要
- 交通
-
阪和線 北信太駅 まで 徒歩16分
- 接道状況
- 北側 公道5.9m 間口約15.1m
- 土地面積
- 295.12㎡ (89.27坪)
- 建物面積
- 162.84㎡ (49.25坪)
- 築年数
-
1974年
(昭和49)
10月
築51年 - 建ぺい率
- 40%
- 容積率
- 80%
- 土地権利
- 所有権
- 構造および階数
- 木造 地上2階建
- 小学校区
- 鶴山台北
- 中学校区
- 信太
- 私道負担
- なし
- 地目
- 宅地
- 現況
- 居住中
- 引渡時期
- 相談
- 駐車場
- 有
- 上水道
- 下水道
- ガス
- 都市計画
- 市街化区域
- 用途地域
- 1種住居
- 設備・条件
- 備考
- 都市ガス,上水道,下水道
- 取引態様
- 仲介







