中古一戸建て 岸和田市上野町西
所在地
岸和田市上野町西
3,180万円
26.09坪
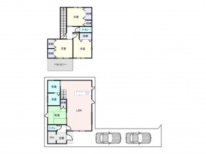
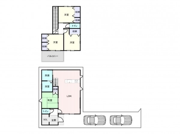
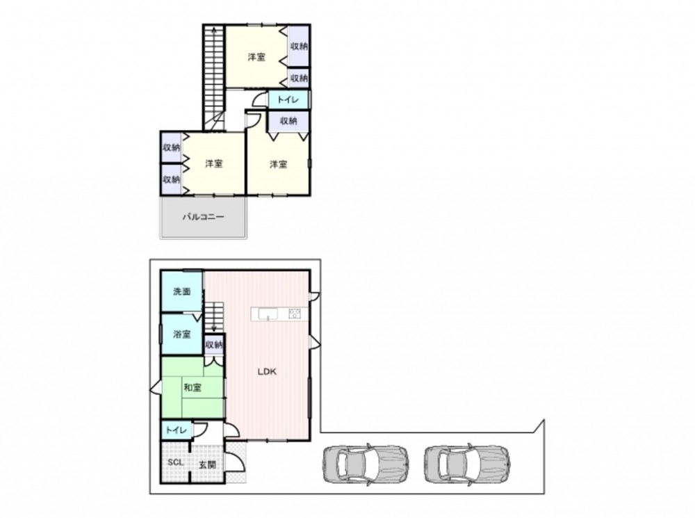
4LDK
・令和2年築!
・2階建ての広々4LDK♪
・収納豊富!
・南海本線『和泉大宮』駅まで徒歩7分!
・駐車スペース2台分あり!
・周辺環境充実!
・閑静な住宅地!
物件概要
- 交通
-
南海本線 和泉大宮駅 まで 徒歩7分
- 接道状況
- 南東側 公道5.5m 間口約4m
- 土地面積
- 120.52㎡ (36.45坪)
- 建物面積
- 86.26㎡ (26.09坪)
- 築年数
- 2020年 (令和2)
- 建ぺい率
- 60%
- 容積率
- 200%
- 土地権利
- 所有権
- 構造および階数
- 木造 地上2階建
- 小学校区
- 朝陽
- 中学校区
- 野村
- 私道負担
- 地目
- 宅地
- 現況
- 居住中
- 引渡時期
- 相談
- 駐車場
- 有
- 上水道
- 下水道
- ガス
- 都市計画
- 市街化区域
- 用途地域
- 1種住居
- 設備・条件
- 備考
- 都市ガス,電気,上水道,下水道,システムキッチン,カウンターキッチン,食器洗浄乾燥機,給湯,追焚機能,トイレ2箇所,バス・トイレ別,シャワー,洗面所,洗面台,室内洗濯機置場,浴室乾燥機,フローリング,収納スペース,シューズインクローゼット,駐車場2台分
- 取引態様
- 仲介







