中古一戸建て 岸和田市加守町3丁目
所在地
岸和田市加守町3丁目
999万円
26.04坪
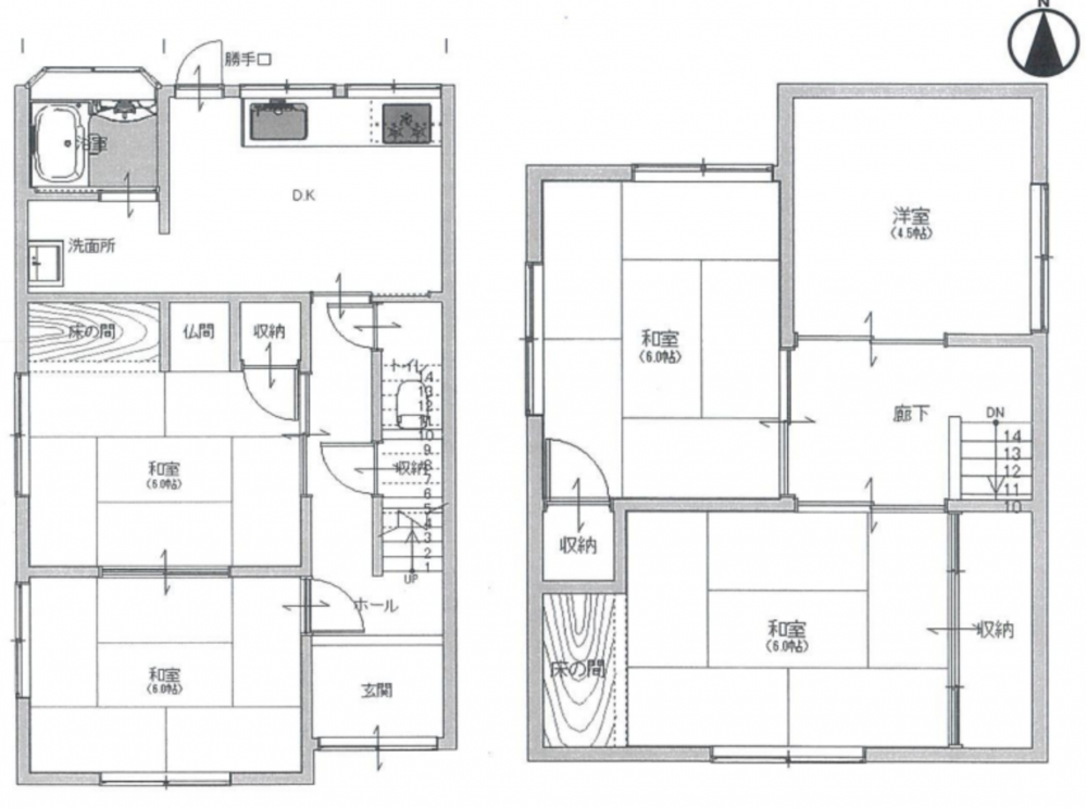
5DK
・土地面積102.71㎡、建物面積86.10㎡の広々5DK
・全居室6帖以上で快適な居住空間
・南海本線「春木」駅 徒歩7分の好立地
・前面道路幅員約6.35mで車の出入りも安心
・都市ガス・電気・上下水道完備
・カーポート・独立洗面台付き
・閑静な住宅街!
・周辺環境充実!
月々の
支払例
支払例
万円
年
%
円
※紀陽銀行/借入金999万円、返済期間35年、金利0.600%変動)の場合
※審査により金利は変わる可能性があります。
物件概要
- 交通
-
南海本線 春木駅 まで 徒歩7分
- 接道状況
- 土地面積
- 102.71㎡ (31.06坪)
- 建物面積
- 86.10㎡ (26.04坪)
- 築年数
-
1979年
(昭和54)
8月
築46年 - 建ぺい率
- 60%
- 容積率
- 160%
- 土地権利
- 所有権
- 構造および階数
- 木造 地上2階建
- 小学校区
- 大宮
- 中学校区
- 野村
- 私道負担
- 地目
- 宅地
- 現況
- 空
- 引渡時期
- 相談
- 駐車場
- 有
- 上水道
- 下水道
- ガス
- 都市計画
- 市街化区域
- 用途地域
- 準工業
- 設備・条件
- 備考
- 取引態様
- 仲介







